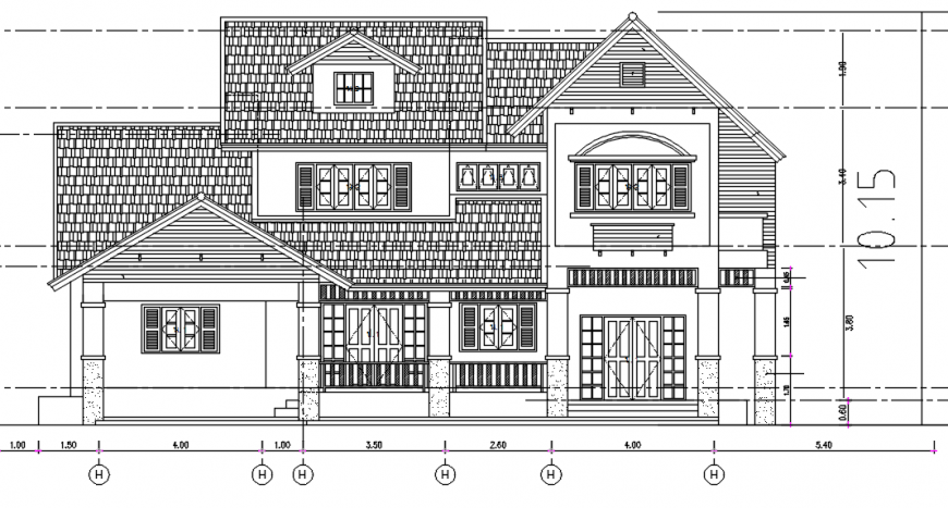
CAD elevation drawings detail of apartment bungalow 2d view dwg file
Description
CAD elevation drawings detail of apartment bungalow 2d view dwg file that shows front elevation of the apartment along with building height 10.15m along with roofing structure detail and door window blocks details and other detail of building units also included in drawings.
Uploaded by:
Eiz
Luna

